千葉市中央区仁戸名町 1号棟 千葉県千葉市中央区仁戸名町|3,698万円の新築一戸建て|千葉リアルティー
| 価格 | 3,698万円値下がり ![]() |
||||
|---|---|---|---|---|---|
| 所在地 | 千葉県千葉市中央区仁戸名町
仁戸名町周辺の一戸建てを探す |
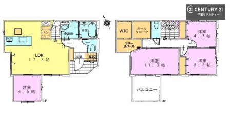
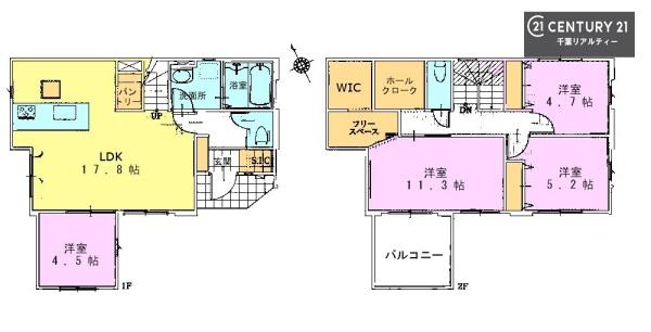
土地面積 | 141.36m² (42.76坪) | 建物面積 | 102.85u |
| 築年月 | 2025年12月築 | 間取り | 4LDK (LDK17.8/洋室4.5/洋室11.3/洋室5.2/洋室4.7) | ||
| 交通 |
京成千原線 大森台 徒歩13分
京成千原線 千葉寺 徒歩31分 JR京葉線 蘇我 徒歩35分 |
||||
| 特徴 |
|
|---|---|
| セールスコメント | 住宅ローンアドバイザーによるローンのご相談承ります。 |
| 採光面 | 南西 | 構造/階数 | 木造/地上2階建 |
|---|---|---|---|
| 建ぺい率 | 80(%) | 容積率 | 200(%) |
| 駐車場 | 有 | 現況/引渡し | 新築/相談 |
| 土地権利 | 所有権 | 私道負担面積 | - |
| 接道状況 | 接道: 東南 公道 道路幅: 4m | 用途地域 |
近隣商業地域
|
| セットバック | - | 法令上の制限 | 景観法;宅地造成工事規制区域 |
| 地目 | 宅地 | 地勢 | |
| 建築確認番号 | 第25UDI1W建01465号 | 都市計画 | 市街化区域 |
| 取引態様 | 仲介 | ||
| 情報更新日 | 2026年01月09日 | 次回更新日 | 2026年01月23日 |
| 小学校区 | 千葉市立仁戸名小学校 (千葉県千葉市中央区) 仁戸名小学校の他の物件を見る |
中学校区 | 松ケ丘中学校 (千葉県千葉市中央区) 松ケ丘中学校の他の物件を見る |
|---|
| 価格 | 万円 | ||
|---|---|---|---|
| 年利率 | % |
||
| ボーナス払い | 返済年数 | ||
| 頭金 | 直接入力する | 万円 | |

毎月のご返済額 |
ボーナス(×年2回) |
物件価格3,698万円 |
![]() |
![]() |
千葉市中央区仁戸名町
3698万円 |
南西向き陽当たり良好!毎日家族と顔が合わせられるリビングイン階段!コミュニケーションが取りやすい間取り!ウォークインクローゼットやシューズインクローク付き!