千葉市中央区蘇我3丁目 5号棟 千葉県千葉市中央区蘇我3丁目|2,988万円の新築一戸建て|千葉リアルティー
| 価格 | 2,988万円値下がり ![]() |
||||
|---|---|---|---|---|---|
| 所在地 | 千葉県千葉市中央区蘇我3丁目
蘇我周辺の一戸建てを探す |
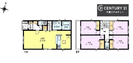
土地面積 | 124.64m² (37.7坪) | 建物面積 | 95.58u |
| 築年月 | 2026年1月築 | 間取り | 4LDK (LDK20/洋室6.5/洋室5.2/洋室5.2/洋室5.2) | ||
| 交通 |
JR京葉線 蘇我 徒歩26分
JR内房線 浜野 徒歩27分 京成千原線 大森台 徒歩39分 |
||||
| 特徴 |
|
|---|---|
| セールスコメント | 住宅ローンアドバイザーによるローンのご相談承ります。 |
| 採光面 | 南西 | 構造/階数 | 木造/地上2階建 |
|---|---|---|---|
| 建ぺい率 | 60(%) | 容積率 | 200(%) |
| 駐車場 | 有 | 現況/引渡し | 新築/即時 |
| 土地権利 | 所有権 | 私道負担面積 | - |
| 接道状況 | 接道: 北 公道 道路幅: 6.01m | 用途地域 |
第一種住居地域
|
| セットバック | - | 法令上の制限 | 景観法;日影制限有 |
| 地目 | 宅地 | 地勢 | |
| 建築確認番号 | 都市計画 | 市街化区域 | |
| 取引態様 | 仲介 | ||
| 情報更新日 | 2026年05月22日 | 次回更新日 | 2026年06月05日 |
| 小学校区 | 千葉市立蘇我小学校 (千葉県千葉市中央区) 蘇我小学校の他の物件を見る |
中学校区 | 蘇我中学校 (千葉県千葉市中央区) 蘇我中学校の他の物件を見る |
|---|
| 価格 | 万円 | ||
|---|---|---|---|
| 年利率 | % |
||
| ボーナス払い | 返済年数 | ||
| 頭金 | 直接入力する | 万円 | |

毎月のご返済額 |
ボーナス(×年2回) |
物件価格2,988万円 |
![]() |
![]() |
千葉市中央区蘇我3丁目
2988万円〜3388万円 |
南東向き陽当たり良好!全居室2面採光!通気性の良いお家!毎日家族と顔が合わせられるリビングイン階段!コミュニケーションがとりやすい!